Jazyk a mena:
sk
|
€
Doručenie na adresu:
Polska
Jazyk
pl
en
sk
cs
fr
de
bg
Mena
zł (1 € = 4.2592zł)
€
£ (1 € = 0.8693£)
$ (1 € = 1.1586$)
BGN (1 € = 1.9558BGN)
RON (1 € = 5.0899RON)
Ft (1 € = 3.9205Ft)
Doručenie na adresu
Austria
Belgia
Białoruś
Bośnia i Hercegowina
Bułgaria
Chiny
Chorwacja
Czechy
Dania
Estonia
Finlandia
France
Germany
Greece
Holandia
Ireland
Kanada
Kolumbia
Litwa
Łotwa
Luksemburg
Meksyk
Norway
Polska
Portugal
Rumunia
Serbia
Słowacja
Słowenia
Spain
Szwajcaria
Szwecja
UK
Ukraina
USA
Watykan
Węgry
Włochy
Uplatnenie zmien
Prihlásiť sa
Nákupné zoznamy
0
Nákupný zoznam
0
0,00 €
Produkt
Množstvo
Cena
Náklady na doručenie od
Odzież
Stroje koszykarskie - Męskie
Koszulki koszykarskie
Spodenki koszykarskie
Dresy koszykarskie
Komplety koszykarskie
Koszulki rozgrzewkowe koszykarskie
Stroje koszykarskie - Damskie
Koszulki koszykarskie
Spodenki koszykarskie
Dresy koszykarskie
Odzież lifestyle
Koszulki
Bluzy
Bluzy z kapturem
Bezrękawniki
Kurtki wiosna-jesień
Kurtki zimowe
Spodenki
Spodnie
Dresy
Rękawiczki
Szaliki
Legginsy
Staniki sportowe
+ Rozbaliť
Stroje koszykarskie - Dziecięce
Koszulki koszykarskie
Komplety koszykarskie
Czapki
Z daszkiem
Zimowe
Skarpety
Skarpety koszykarskie
Happy Socks
Stance
Bielizna koszykarska
Nadruki na strojach
Odzież termoaktywna
Akcesoria
Akcesoria sędziowskie
Chorągiewki
Dom i Ogród
AGD
Akcesoria trenerskie
Tablice taktyczne
Akcesoria i sprzęt meczowy
Akcesoria i sprzęt treningowy
Drabinki
Pachołki
Płotki
Akcesoria
Dryblerki
Fitness
Ekspandery i gumy
Kamizelki treningowe
Maty i materace
Orbitreki/trenażery
Pasy i opaski
Pilates i joga
Skakanki
Wioślarze
Ławki treningowe
Piłki do koszykówki
Na halę - Indoor
Na zewnątrz - Outdoor
Uniwersalne
Kolekcjonerskie
Pompki do piłek
Torby na piłki
Płotki
Portfele
Siłownia
Akcesoria do atlasów
Akcesoria do ławek
Atlasy
Gryfy i drążki
Hantle i odważniki
Ławki treningowe
Maszyny i suwnice
Obciążenia
Poręcze
Stojaki
Wyciągi
Trening fitness
Uchwyty do pompek
+ Rozbaliť
Torby i plecaki
Plecaki szkolne i sportowe
Plecaki Turystyczne
Torebki
Walizki i Torby podróżne
Zestawy szkolne
Torby sportowe treningowe
Piórniki
Worki sportowe
Śniadaniówki
Saszetki - nerki
Torby męskie
+ Rozbaliť
Zestawy koszykarskie dla dzieci
Okulary przeciwsłoneczne
Zegarki
Akcesoria turystyczne
Karty podarunkowe
Medycyna sportowa
Apteczki medyczne
Torby medyczne
Krioterapia
Ochraniacze
Skarpety i opaski kompresyjne
Stabilizatory i ortezy
Stabilizatory barku
Stabilizatory kostki
Stabilizatory kolana
Stabilizatory łokci
Stabilizatory nadgarstka
Stabilizatory pleców
Temblak
Urządzenia medyczne
Tlenoterapia
Wyposażenie boisk
Akcesoria
Bramki
Obręcze do koszykówki
Zestawy do koszykówki
Siatki do koszy
Osłony - zabezpieczenia do koszy
Tablice do koszykówki
Kosze najazdowe
Nawierzchnie sportowe
Piłkochwyty
Stojaki
Tablice wyników
Wózki na piłki
Wynajem sprzętu
Słupki do siatkówki
Słupki do tenisa ziemnego
Urządzenia do treningów
Urządzenia do podawania piłek
Boiska przydomowe
Fanzone
Akcesoria NBA
Gadżety koszykarskie
Jordan
Jordan Retro
Jordan Performance
Jordan Lifestyle
NBA
Koszulki NBA
Atlanta Hawks
Boston Celtics
Brooklyn Nets
Charlotte Hornets
Chicago Bulls
Cleveland Cavaliers
Dallas Mavericks
Denver Nuggets
Detroit Pistons
Golden State Warriors
Houston Rockets
Indiana Pacers
Los Angeles Clippers
Los Angeles Lakers
Memphis Grizzlies
Miami Heat
Milwaukee Bucks
Minnesota Timberwolves
New Orleans Pelicans
New York Knicks
Orlando Magic
Philadelphia 76ers
Phoenix Suns
Portland Trail Blazers
Sacramento Kings
San Antonio Spurs
Seattle SuperSonics
Toronto Raptors
Utah Jazz
Washington Wizards
Obuwie
Buty do koszykówki - Męskie
Air Jordan
Adidas
Nike
Under Armour
Buty na co dzień
Air Jordan
Adidas
Nike
Converse
Puma
New Balance
Vans
Inne
Buty treningowe
Air Jordan
Under Armour
Buty zimowe
Klapki
Konserwacja obuwia
Dezynfekcja butów
Sandały
Custom & Renovation
Custom
Buty
Plecaki
Odzież
Czapki
Haft na czapkach
Dezynfekcja
Naszywki - Aplikacje
Dla klubów
Sporty drużynowe
Siatkówka
Piłki do siatkówki
Siatka do siatkówki
Piłka nożna
Buty do piłki nożnej
Bramki do piłki nożnej
Siatki na bramkę piłkarską
Wózki do malowania lini na boisku
Futbol amerykański
Piłki
Piłka ręczna
Bramki do piłki ręcznej
Skating, slackline
Hulajnogi
Hulajnogi wyczynowe
Ochraniacze, kaski
Place zabaw
Outlet
Buty
Koszulki
Bluzy
Kurtki
Plecaki/Worki
Akcesoria
Sporty towarzyskie i rekreacja
Dart
Tablice do Darta
Pozostałe
Gry zręcznościowe
Cymbergaj
Latawce treningowe
Sporty Wodne
Sprzęt ratunkowy i asekuracyjny
Tenis stołowy
Rakietki
Siatki
Stoły
Sporty walki
Boks
Kaski
Rowery i pojazdy
BLACK WEEK
Pomysł na prezent
Späť
Úvodná stránka
Wyposażenie boisk
Akcesoria
Bramki
Obręcze do koszykówki
Zestawy do koszykówki
Siatki do koszy
Osłony - zabezpieczenia do koszy
Tablice do koszykówki
Kosze najazdowe
Nawierzchnie sportowe
Piłkochwyty
Stojaki
Tablice wyników
Wózki na piłki
Wynajem sprzętu
Słupki do siatkówki
Słupki do tenisa ziemnego
Urządzenia do treningów
Boiska przydomowe
Zestawy do koszykówki
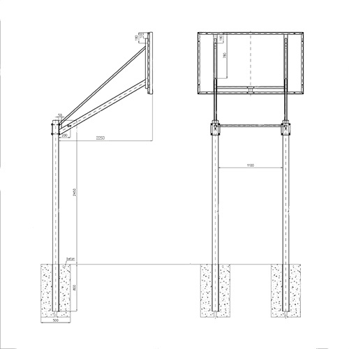
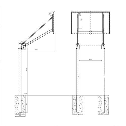
Two-post basketball basket, 225 cm reach, 180x105 backboard, rim, net
Pridané na porovnanie
Porovnať produkty
(0)
Odstrániť produkty
Two-post basketball basket, 225 cm reach, 180x105 backboard, rim, net
+ Pridať na porovnanie
Pridať do nákupného zoznamu
Veľkosť
uniwersalny
845,23 €
s DPH
/
1
szt.
Najnižšia cena od 30 dní pred zľavou:
/
1
szt.
Bežná cena:
/
1
szt.
Cenníková cena:
Môžete kúpiť za
bod.
1
2
3
4
5
viac
z
Pridať do košíka
Informujte ma o dostupnosti produktu
Kontaktujte personál predajne
, odhadnúť čas potrebný na prípravu tohto výrobku na prepravu.
Doprava
(%d na sklade)
Lacné a rýchle dodanie
Tento produkt nie je k dispozícii v stacionárnom obchode
Bezpečné nakupovanie
Po zakúpení dostanete
bod.
Výrobok je vypredaný
Keď bude produkt opäť k dispozícii, dostanete od nás e-mailové upozornenie.
Vaša e-mailová adresa
Oznámenie o dostupnosti
Údaje sa spracúvajú v súlade s
zásady ochrany osobných údajov
. Jeho odoslaním akceptujete jeho ustanovenia.
Uvedené údaje sa nepoužívajú na zasielanie informačných bulletinov ani inej reklamy. Aktiváciou oznámenia súhlasíte s tým, že vám môžeme zasielať informácie o opätovnej dostupnosti tohto produktu len jednorazovo.
Two-post basketball basket, 225 cm reach, 180x105 backboard, rim, net
Značka
RomiSport
Symbol
Kos000054
Kód výrobcu
5903899673452
Potrebujete pomoc? Máte otázky?
Položte svoju otázku a my vám okamžite odpovieme a uverejníme najzaujímavejšie otázky a odpovede pre ostatných.
Položiť otázku
Dopyt na produkt
Ak vám vyššie uvedený popis nestačí, pošlite nám svoju otázku o tomto výrobku. Pokúsime sa odpovedať čo najskôr.
Údaje sa spracúvajú v súlade s
zásady ochrany osobných údajov
. Jeho odoslaním akceptujete jeho ustanovenia.
E-mail
Otázka
Odoslať
Real customers reviews
4.8
/ 5.0
2516 reviews
This page uses cookie files to provide its services in accordance to
Cookies Usage Policy
. You can determine conditions of storing or access to cookie files in your web browser.
Close